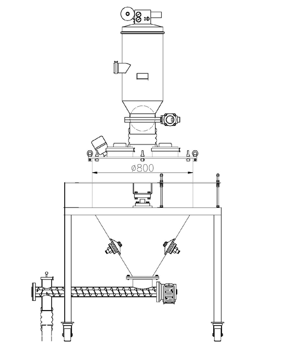
減量秤重輸送設備屬于不銹鋼薄壁類容器,選用的SUS304鋼板和不銹鋼專用焊接材料均符合有關國家標準和行業標準的規定。
整個罐體內光滑無死角,不掛料、便于清洗。罐體的上蓋處裝有呼吸閥,可平衡倉體氣壓。
選用模塊化稱重元件,拆裝方便,可實現排放量的在線測量。
通過減速變頻電機驅動螺桿旋轉,推動物料向前移動。物料從出料口經下料蝶閥順利進入下一工序中。
當輸送量達到設定的計量值時,螺桿停止工作。同時稱重模塊不斷檢測稱重罐剩余物料的重量,當稱重罐內的物料重量小于要求輸送的重量時,設備會提示重量不夠,需要向稱重罐內添加物料。一旦達到計量值,螺桿隨即停止工作,下料蝶閥關閉。
螺桿輸送能力由螺桿行程、螺桿直徑和螺桿轉速決定。









